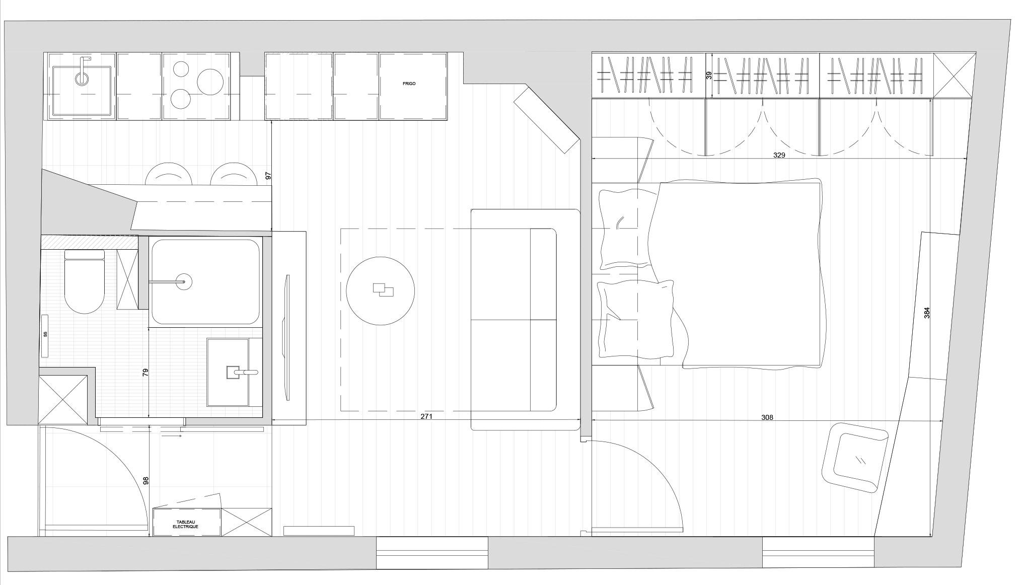
Dans le quartier de Clignancourt, ce T2 parisien a fait l’objet d’une rénovation complète.
Le logement a été entièrement curé afin de repartir d’une base saine et de moderniser l’ensemble des installations.

Les réseaux de plomberie et d’électricité ont été repris, et la salle de bain repensée en ouvrant l’ancien WC pour créer un espace plus fluide et fonctionnel.

Sols, revêtements et menuiseries intérieures ont été renouvelés dans une palette sobre et lumineuse. Des agencements sur mesure viennent structurer l’espace et optimiser les rangements.

Un intérieur parisien rénové en profondeur, plus clair et plus confortable, qui valorise l’existant tout en répondant aux usages contemporains.

Précédent
Précédent

Folie-Méricourt

Suivant
Suivant

Sanary-sur-Mer