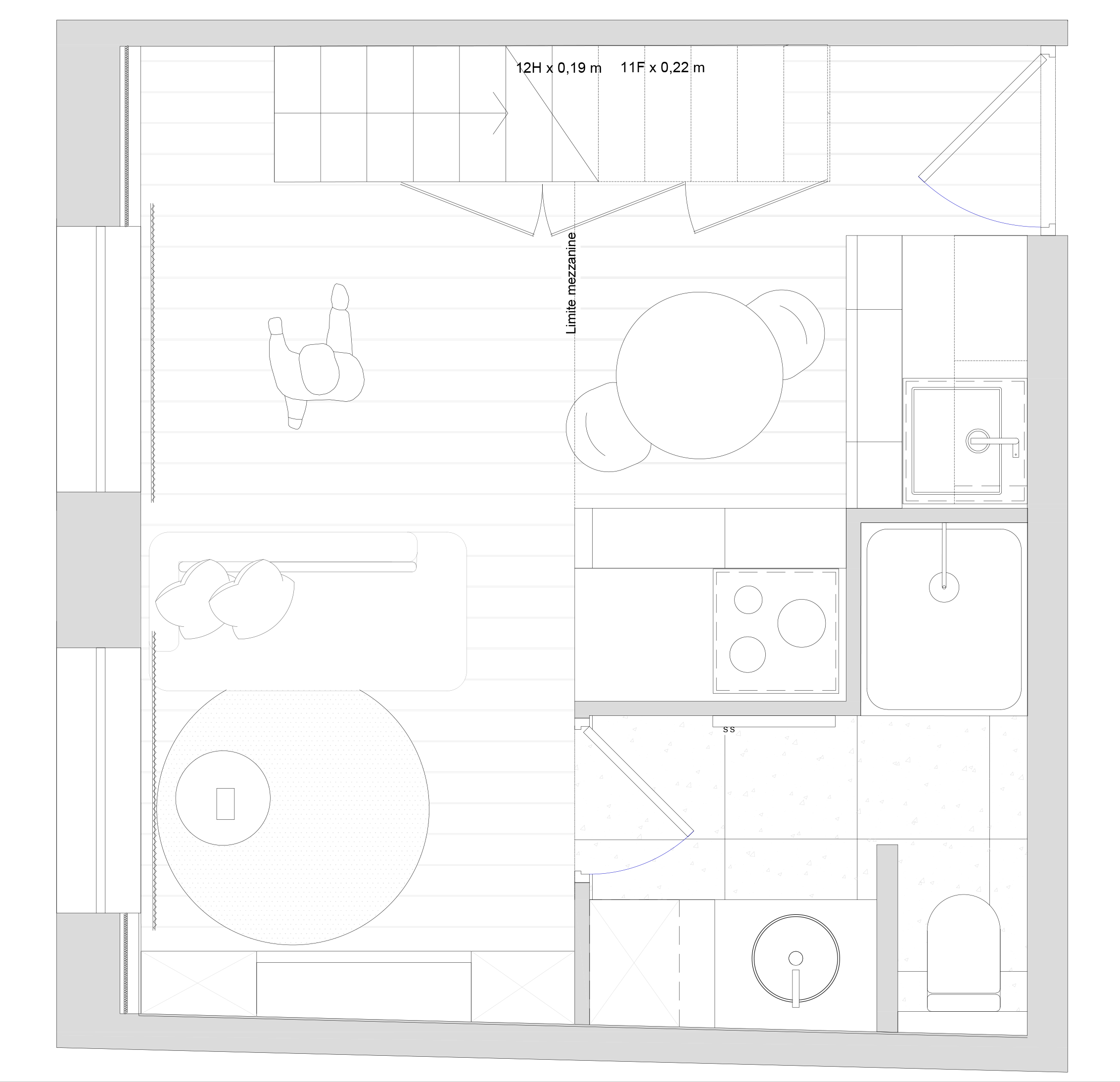
Sous les toits du 11ᵉ arrondissement, cet appartement a été entièrement repensé pour révéler la lumière et la hauteur du lieu.
La création d’une mezzanine structure l’espace et libère la pièce de vie, dans une palette simple de bois et de tons clairs.
Un intérieur compact, lumineux et ouvert sur les toits de Paris.

Suivant
Suivant

Clignancourt